產品參數

一、用途
BP8Y頻敏變阻器實質上是一種無觸點電磁元件,相當于一個等值阻抗,在電動機起動過程中,由于等值阻抗,隨轉子電流頻率減小而自動下降,從而只需一級變阻器就可把電動機平穩的起動起來。
BP8Y頻敏變阻器的工作條件:
依據操作的頻繁程度不同,可分為三類:
第一類:稍頻繁,每小時100-400次,機械車間的橋式吊車上除主鉤外,平移機鉤上的電機,出米輥道,拉鋼機等,大多數剛起動就斷電。
第二類:較頻繁,每小時400-600次。冶金軋鋼四間橋式吊車,除主鉤外,平移機鉤上的電機,軋機前后工作輥道,延伸輥道等,大多數剛起動就斷電。
第三類:頻繁操作,第小時600-1000次,升降后,升降臺輥道,壓下裝置,拔鋼機,軋機中輥。
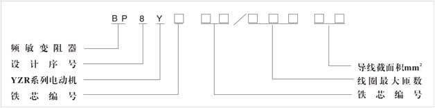
二、BP8Y頻敏變阻器型號意義
三、BP8Y頻敏變阻器結構及安裝尺寸
BP8Y頻敏變阻器實質是一個鐵芯,損耗特大的三相電抗器。它由數片山形鋼板疊合而成,每塊鋼板之間有氣隙墊片的鐵芯及線圈兩個主要部分組成。鐵芯采用冷沖制成的山字型結構。
結構及安裝尺寸見上圖。
四、BP8Y系列頻敏變阻器外開形圖及安裝尺寸
| 代號 鐵芯編號 排數 | L1 | L2 | H1 | H2 | B1 | B2 | |
| 1# | BP8Y-104 BP8Y-106 BP8Y-108 BP8Y-110 | 160 | 230 | 181 | 221 | 125 151 177 203 | 225 251 277 303 |
| 8# | BP8Y-804 BP8Y-806 BP8Y-808 BP8Y-810 BP8Y-812 | 230 | 355 | 215 | 260 | 122 158 194 230 166 | 322 358 394 430 466 |
| 9# | BP8Y-906 BP8Y-908 BP8Y-910 BP8Y-912 | 330 | 510 | 365 | 410 | 163 209 255 301 | 363 409 455 506 |
五、系列表
根據電機規格,操作頻繁程度不同,可在系列表中直接查出頻敏變阻器規格。